地下鉄烏丸御池駅における出店事業者募集
ページ番号350415
2026年3月9日
京都市交通局では、お客様の利便性向上、駅の新たな賑わい創出、更なる増収を目的として「駅ナカビジネス」を積極的に展開しています。
この度、地下鉄烏丸御池駅の構内店舗区画へ出店していただける事業者を募集します。
募集条件
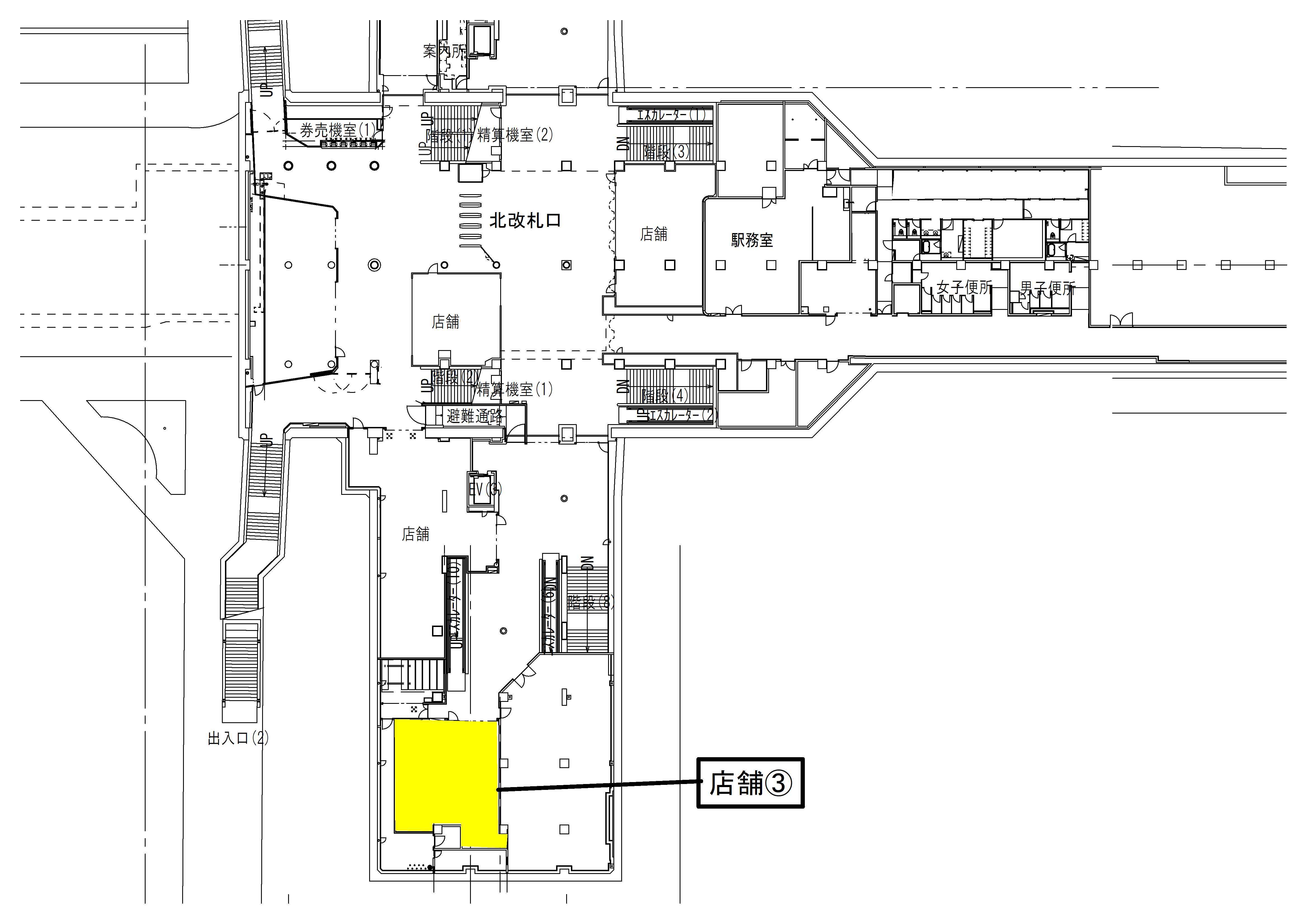
募集場所・面積〈別図参照〉
地下鉄烏丸御池駅
区画面積 店舗3 約101㎡
最低保証賃料(税別)
地下鉄烏丸御池駅
店舗3 130千円/月
募集事業者
駅利用者の利便に供する物販及びサービス等を提供する事業者
契約期間
地下鉄烏丸御池駅 令和13年9月30日まで
(補足)その他詳細は募集要項を御確認ください。
募集要項の配布
配布開始日
令和8年3月12日(木曜日)
配布場所
京都市交通局企画総務部営業推進課内
(〒616-8104 京都市右京区太秦下刑部町12番地 サンサ右京5階)
(補足)交通局のホームページ上でも公開します。
https://www.city.kyoto.lg.jp/kotsu/page/0000350415.html
応募受付
募集要項記載の必要書類一式を受付期間内に持参又は郵送により提出してください。
受付期間
令和8年4月8日(水曜日)から4月13日(月曜日)
(平日午前9時から正午、午後1時から午後5時)
(補足)郵送の場合は、令和8年4月13日(月曜日)必着
受付場所
〒616-8104 京都市右京区太秦下刑部町12番地 サンサ右京5階
京都市交通局企画総務部営業推進課
電話:075-863-5068
(補足)郵送の場合は、提出書類の内容確認のため、御担当者様へ連絡させていただきます。
(補足)持参の場合は、事前に営業推進課まで御連絡のうえ、お越しください。
質問及び回答
質問の受付期間
令和8年3月18日(水曜日)から23日(月曜日)午後5時
質問に対する回答
質問いただいた内容については、質問票を提出いただいた全ての事業者に対し、
令和8年3月31日(火曜日)までに回答をお送りする予定です。
<別図>
地下鉄烏丸御池駅
報道発表資料
発表日
令和8年3月9日(月曜日)
担当課
京都市交通局 企画総務部営業推進課
電話:075-863-5068
(担当:長谷川、池澤)
【報道発表資料】

- PDFファイルの閲覧には Adobe Reader が必要です。同ソフトがインストールされていない場合には、Adobe 社のサイトから Adobe Reader をダウンロード(無償)してください。
【募集要項・提出書類様式】

- PDFファイルの閲覧には Adobe Reader が必要です。同ソフトがインストールされていない場合には、Adobe 社のサイトから Adobe Reader をダウンロード(無償)してください。
お問い合わせ先
京都市 交通局企画総務部営業推進課
電話:(営業企画担当)075-863-5066、(営業推進担当)075-863-5065、(駅ナカ担当)075-863-5068、(広告担当)075-863-5062、(資産活用担当)075-863-5096
ファックス:075-863-5099







